| 管理番号 | km-204 |
|---|---|
| 種別 | 中古マンション |
| 所在地 | 鳥栖市弥生が丘1丁目8 |
| 交通アクセス | JR鹿児島本線「弥生が丘」駅 徒歩2分 |
| 特記 | ☆リノベーション物件!令和7年5月完了!! |
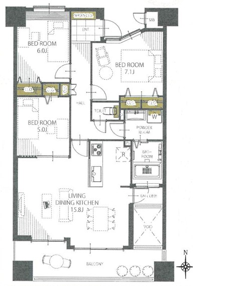
| 間取り | 3LDK |
| 管理費/積立金 | 6,400円/6,800円/月 |
| 建物/専有面積 | 75.01m2(22.69坪) |
| 地目 | 宅地 |
| 築年月 | 2003年10月(築22.4年) |
| 構造 | 鉄骨鉄筋コンクリート造 |
| 取引態様 | 一般媒介 |
| 建物階/所在階 | 15階建2階部分 |
| 総戸数 | 1戸 |
| 駐車場 | あり(4,000円〜6,000円/月)※機械式、制限有 |
| 学校区 | 弥生が丘小学校/田代中学校 |
| 条件等 | ※町内会費 600円/月 |
| 現況 | 空家 |
| 引渡 | 即 |
| 設備 | 都市ガス・給湯・オートロック・エレベーター・宅配ボックス・コンロ3口以上・シューズボックス・TVモニター付インターホン・室内洗濯機置場・防犯カメラ・収納スペース・駐輪場 ♢新規交換:システムキッチン・ユニットバス・洗面化粧台・トイレ・建具・配管更新 新規張替:クロス全室・床材 その他:ハウスクリーニング |
| 担当支店 | 久留米店 |
| 担当者のコメント | ☆JR弥生が丘駅前徒歩2分、スーパー、コンビニも徒歩圏内の利便性の良い立地・2階の南向きの住戸です!3LDK・専有面積75.01u、リビング15.2帖、全居室収納ありで、荷物の多い方にもおすすめです。洋室5.0帖を開放すればLDKと一体化した空間に。オートロックとTVモニター付きインターホン装備で安心のセキュリティ。宅配ボックスがあるので、留守中でも荷物を受け取れます・ペット飼育可能(犬・猫)(ペット飼育細則にて制限有)。お気軽にご相談ください。 担当:堤 |
| 備考 | B.C |
物件詳細データ
チェックした物件
ご希望の物件お探しします
おうち屋 太宰府店では「太宰府市」「筑紫野市」「筑前町」地区の物件を中心に取り扱っています。
「この地域内で」「予算がいくらで」「こんな物件を探している」などありましたら、お気軽にお問い合わせください。
お客様のご希望にそった物をお探しさせて頂きます。
おうち屋 飯塚店では「飯塚市」地区の物件を中心に取り扱っています。
「この地域内で」「予算がいくらで」「こんな物件を探している」などありましたら、お気軽にお問い合わせください。
お客様のご希望にそった物をお探しさせて頂きます。
おうち屋 久留米店は「小郡市」「基山町」「鳥栖市」「久留米市」地区の物件を中心に取り扱っています。
「この地域内で」「予算がいくらで」「こんな物件を探している」などありましたら、お気軽にお問い合わせください。
お客様のご希望にそった物をお探しさせて頂きます。
















